Grote Jager

Luxuriös Abenteuerlustig Stimmungsvoll
- max. Gästeanzahl für Tagestouren: 35
- max. Gästeanzahl bei Übernachtung: 26
- max. Gästeanzahl mit Catering: 24
- Abfahrthafen...: Enkhuizen
- Fahrgebiete: IJsselmeer, Wattenmeer, friesische Binnengewässer
Gästebewertungen lesen
Beschreibung
Ein luxuriöser und sehr gemütlicher Klipper, auf dem man viel Kontakt zum Skipper und seinem Maat hat. Für abenteuerliche Segeltörns auf dem IJsselmeer, dem Wattenmeer und dem Markermeer.
Die Grote Jager wurde 1893 in Waspik auf der bekannten Werft Ruijtenberg als segelndes Frachtschiff gebaut. Das Schiff war 90 Jahre lang als Frachtschiff in den Niederlanden, Deutschland und Dänemark unterwegs. Im Jahr 1983 wurde es zu einem segelnden Passagiersschiff umgebaut. Die Grote Jager, liebevoll und mit viel Liebe zum Detail restauriert, verbindet Nostalgie mit Komfort. An Deck bietet das großzügige Cockpit ausreichend Platz für alle. Mit Raum für 26 Personen, einem gemütlichen Salon, komfortablen Schlafkabinen und einer gut ausgestatteten Kombüse ist die Grote Jager mit allem ausgestattet, was man für einen gelungenen Segeltörn braucht.
Sobald die Leinen los sind, beginnt das Abenteuer! Segel setzen, Kurs bestimmen, gemeinsam mit dem Schiff segeln – oder einfach entspannen und die Ruhe auf dem Wasser genießen. Alles kann, nichts muss. Die Sicherheit steht dabei immer an erster Stelle. Skipper Kars Petri legt großen Wert darauf, den Umgang mit dem Rigg, den Fallen und Schoten genau zu erklären. Auf sympathische Weise sorgt er gemeinsam mit dem Matrosen dafür, dass sich alle schnell mit dem Schiff vertraut fühlen. Segelerfahrung ist nicht erforderlich, um aktiv mitzusegeln.
Buchen Sie jetzt Ihren Törn auf diesem imposanten Klipper und erleben Sie 130 Jahre Segelgeschichte!
Fotos
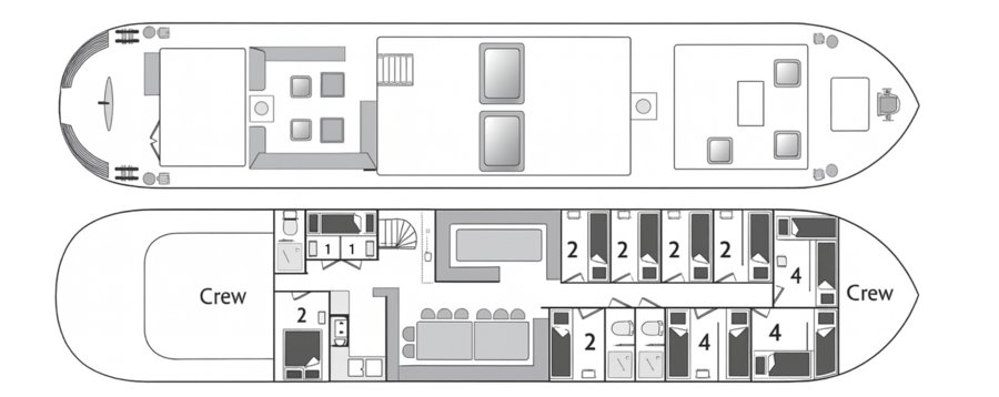
Klicken Sie auf den Grundriss, wenn Sie eine vergrößerte Version wünschen
Grundriss
Merkmale











